Inheritage

Inspiration

查看新院区发展历程

查看建筑亮点

2007
2010
2013
2014
2015
2018

新院区大事件

  • 2007四月

    陆雄文院长提出《 22 世纪园区畅想 》,勾画在城市中新建一座管理学院新院区的设想,得到杨浦区、瑞安集团支持。三方经商议探讨达成共识,寻求在杨浦区辖内合作建设管理学院新院区的可能方案。

  • 2010三月23

    复旦大学与上海市杨浦区人民政府签署了《关于合作推进国家创新型试点城区建设战略协议》,明确了要“以创新的体制、机制和运营模式共同建设复旦大学管理学院新院区,充分发挥复旦大学的优质教育品牌,集聚社会资源,建设若干具有国际水准的高端教育与培训项目,开展与区域经济社会发展紧密契合的应用研究,进一步提升五角场城市副中心的品质和活力,扩大杨浦的国际影响力”。

  • 2013十月12

    新院区奠基仪式隆重举行。时任复旦大学党委书记朱之文,时任中共上海市杨浦区区委书记陈寅,瑞安集团主席罗康瑞,绿地集团董事长兼总裁张玉良,复旦大学及杨浦区部分老领导和现职领导,管理学院国际顾问委员会部分委员以及管理学院师生与校友代表共400余人出席仪式。新院区正式定名为“复旦大学管理学院政立院区”。

  • 2014九月

    政立院区项目正式进入工程施工阶段。

  • 2015五月26

    “李达三叶耀珍管理教育发展基金”成立暨捐赠仪式举行,时任复旦大学党委书记朱之文、复旦大学校长许宁生出席会议并代表学校接受了捐赠。李达三及夫人叶耀珍向复旦管理学院共捐赠1.1亿人民币,其中8,000万用于支持政立院区建设。

  • 2018六月

    预计政立院区项目竣工。

  • 探索篇章:启

关闭菜单

关闭菜单

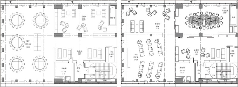
一座中型规模的高标准剧院,体现了管理学院深切真挚的人文情怀。剧院关注复旦师生、面向全社会 , 将展现丰富的文化艺术活力,塑造复旦与杨浦全新的精神风貌。剧院共分为上下两层空间,座位总数 740 余个,由升降式舞台、池座、楼座、控制室、化妆室及其他附属设施共同构成。剧院将与政立院区共享位于地下 750 多个车位及丰富的餐饮、休闲、体育等服务设施。总建筑面积达 6,000 余平方米,设有多套音响系统和布景装置,能够满足多样化的演出需求,包括中型歌剧、舞剧、话剧、戏曲、管弦乐, 也能播放电影。

装潢设计上,剧院以大地色系为主基调,双侧墙面由阶梯式皮影戏抽象图案装饰,突出东方与西方、传统与现代的文化融合。

剧院

【楼层】入口位于一层

【面积】1,330M2

【座位】741个

【区域】C楼会务、文体与休闲区

【冠名金额】

5,000万/间

C 楼的大堂侧厅是演艺活动观众的必经之处。

这里装饰着优美的抽象壁画,为观众的交流创造了悠闲舒适的空间。

大堂侧厅

【楼层】剧院旁侧厅

【区域】C 楼公共区域

【冠名金额】

150万/间

博物馆将成为管理学院传承历史与文化的载体,成为莘莘学子徜徉于学院历史之河的舟楫,成为他们认识、欣赏古今中外文化瑰宝的课堂。

博物馆分为上下两层,总使用面积达 600 平方米。

博物馆的开放空间可以灵活策划不同规模的展览,包括学院校友历年捐赠的艺术品和校友中杰出艺术家的作品。

博物馆

【楼层】1~2 层

【面积】600㎡ (其中 1 层 292㎡ ,2 层 308㎡ )

【区域】C 楼会务、文体与休闲区

【冠名金额】

2,000万/间

健身中心分为上下两层,总使用面积达 1,787 平方米。将由专业的健身企业运营。

健身空间配有专业的羽毛球馆、跳操室、乒乓房、有氧心肺功能健身区、单功能力量区及其他配套设施,让广大师生能够在紧张的学习工作之余关注身体健康、加强体育锻炼,保持充沛的激情和活力。

健身中心

【楼层】3-4 层

【面积】1,787㎡ (3 层 448㎡ ,4 层羽毛球馆 1024㎡ 、SPA315㎡ )

【区域】C 楼会务、文体与休闲区

学生活动中心是主楼 C 内最活泼的空间。未来的商界领袖,既要善于学习,也要具备社交能力和社会组织能力。学生活动中心正是实现学生自主、自立、自治、自享、自由发展、自我管理的基地。

学生活动中心位于五楼南侧,总使用面积 454 平方米,含有会议、休闲、活动及其他配套功能,可灵活组合,是学生开展第二课堂活动的重要场所,为各种俱乐部、社团、项目活动提供空间。

学生活动中心

【楼层】5 层南侧

【面积】454㎡

【区域】C 楼会务、文体与休闲区

【冠名金额】

1,000万/间

海派风格的校友俱乐部以典雅、尊贵、静谧作为设计理念,总使用面积近 800 平方米。由两层内部贯通的楼层结构塑造相对独立私密的空间。完善的配套将为社会贤达名流提供高端的交流平台。

俱乐部将以管理学院自身校友网络为主体,为 MBA、EMBA 校友管理精英提供广泛接触国内外商界领袖、卓越学者沟通和交流的平台。

校友俱乐部

【楼层】11~12 层

【面积】784㎡

【区域】C 楼会务、文体与休闲区

【冠名金额】

2,000万/间

主楼B图书馆+书店,总使用面积为 1,662 平方米,共三个楼层,宽敞明亮。自然光从斗状穹顶透入,象征着智慧之光照耀学子。作为一个全新的模式,图书馆与书店充分结合,满足精品阅读、艺术欣赏、生活方式体验以及文化社交等需求。

图书馆 + 书店

【楼层】B1~2 层

【面积】1,662㎡ (B1 层 642㎡ ,1 层 500㎡ ,2 层 520㎡ )

【座位】329 个(B1 层 101 个,1 层 40 个,2 层 188 个)

【区域】B 楼公共区域

【冠名金额】

3,000万/间

B 楼的大堂由 2 个相连的厅构成,体现了教学场所的庄严肃穆,设计简洁、空间开阔。

大堂

【楼层】B1 层

【区域】B 楼公共区域

【冠名金额】

250万/间

于极静中倾听自己的心音 , 明晰未来的方向。

冥想室是心灵的居所,提供动与静的平衡,提供休憩、自省的空间 , 蓄积内在的能量及前行的动力。

冥想室分隔为几个单独的冥想空间,总面积为 128.7 平方米。

冥想室

【楼层】B1 层

【面积】128.7㎡

【区域】B 楼公共区域

【冠名金额】

50万/间

主楼 B 含 19 间教室,分布于大楼的二至五层。半开放式讲台及听众席设置,让学生和老师能以最自然的方式融入课堂讨论,

也便于同学们之间互相交流,更好适应商学院教学模式。朝向西面(含西南)的教室共有 12 间。

朝向南面的教室共有 7 间。这里紧邻政学路,隔窗相望是不少学院教师寄居的“江湾翰林”。

B 楼平面教室

【50 人】1 间

【70 人】4 间

B 楼阶梯教室

【50 人】2 间

【90 人】12 间

【冠名金额】

400万/间

大堂的建筑亮点是云片状连接的天篷为穹顶。挑高三层的穹顶采用了复杂的钢结构,设计巧夺天工。自然光线从穹顶透入,漫射开来,既营造了肃静的氛围,又让知识之光笼罩照耀了主楼 A 入口的整个空间。整个空间开阔而通透。

大堂的楼梯和栏杆都采用天然木材,透出了温暖、清新的气息,又营造了浓厚的书卷气,其高低错落延展开来,让置身其中的学子们如同走进了山水长卷中。

大堂

【楼层】1 层入口

【区域】A 楼公共区域

【冠名金额】

600万/间

报告厅以沉稳的棕色系为主色调,突出学术报告厅庄重严谨的风格。整体设计既承接中国传统,又充分展现国际化商学院的张力。

报告厅分为两层,总面积为536平方米,座位总数 451 个,拥有现代化的视听设备和同声传译系统,是开展各种学术活动和国际交流的重要场所。

管理学院每年平均举办500场以上活动,含 120 场以上大型会议、论坛、讲座。

报告厅

【楼层】B1~1 层

【面积】536㎡ (B1 层 379㎡ ,1 层 157㎡ )

【座位】451 个(B1 层 312 个,1 层 139 个)

【区域】A 楼行政教学区

【冠名金额】

2,000万/间

国际顾问委员会会议室位于十层,是整个政立院区最为庄重的空间,是全球各界领袖聚首咨议、各国院长会面切磋的场合。它按国际通行的董事会会议室标准配置,圆顶和圆桌布局体现了开放、平等、分享的理念。

国际顾问委员会会议室

【楼层】10 层

【面积】200㎡

【座位】52 个

【区域】A 楼行政教学区

【冠名金额】

500万/间

主楼 A 教室区域位于该楼宇的二楼至四楼,共 19 间。作为政立院区及主教学楼的核心功能区域,教室在设计上也别具匠心,强调色块的疏密、深浅、明暗变化,营造出安静、雅致的氛围,开放的空间布局有利于互动交流,更有效适应商学院教学的课堂需求。教室是每位学子梦想的起点,是开阔视野、激荡思维的场所,也是他们迈向事业征程的驿站。

朝向东面(含东北和东南)的教室共有 7 间。东面方向可尽情欣赏院区中心景观,北望政立路,西邻政立路第二小学。

朝向西面(含西北和西南)的教室共有 9 间,分布在不同的楼层,在环境与功能两方面实现平衡。

朝向北面的教室共有 3 间。教室外双层幕墙由玻璃幕墙和陶管构成,以陶百叶的方式排列,使得自然光线柔和地透入室内。

阶梯教室

A 楼

【50 人】3 间

【70 人】13 间

【90 人】3 间

【冠名金额】

500万/间

作为教室的配套设施,案例讨论室的设计充分考虑到商学院案例教学的特点,每间讨论室可容纳 6-10 人,室内配有高品质的设备器材。

政立院区在每个教室外部都相应配备 1-2 间案例讨论室,同时设计规划了可供较多小组集中讨论的区域。

主楼 A 共设 37 间讨论室,主楼 B 内有 44 间案例讨论室。

A 楼案例讨论室

【楼层】2-4 层

【间数】37

【面积】10.1~19.9㎡

【区域】行政教学区

【冠名金额】

30-50万/间

主楼C

主楼B

主楼A

探索篇章:承

视频模型

校友俱乐部

海派风格的校友俱乐部以典雅、尊贵、静谧作为设计理念。

博物馆

博物馆将成为管理学院传承历史与文化的载体。

学生活动中心

学生活动中心是主楼C内最活跃的空间。

健身中心

健身中心分为上下两层,总使用面积达1,787平方米。

剧院大堂

C楼的大堂侧厅是演艺活动观众的必经之处。

剧院

一座中型规模的高标准剧院,体现了管理学院深切真挚的人文情怀。

返回主楼A、B、C

图书馆 + 书店

自然光从斗状穹顶透入,象征着智慧之光照耀学子。

大堂

教学场所的庄严肃穆,设计简洁、空间开阔。

冥想室

于极静中倾听自己的心音 , 明晰未来的方向。

教室

主楼 B 含 19 间教室,分布于大楼的二至五层。

返回主楼A、B、C

大堂

大堂的建筑亮点是云片状连接的天篷为穹顶。

报告厅

报告厅以沉稳的棕色系为主色调,突出学术报告厅庄重严谨的风格。

国际顾问委员会会议室

报告厅以沉稳的棕色系为主色调,突出学术报告厅庄重严谨的风格。

教室

主楼 A 教室区域位于该楼宇的二楼至四楼,共 19 间。

案例讨论室

作为教室的配套设施,案例讨论室的设计充分考虑到商学院案例教学的特点。

返回主楼A、B、C

校友俱乐部

海派风格的校友俱乐部以典雅、尊贵、静谧作为设计理念。

博物馆

博物馆将成为管理学院传承历史与文化的载体。

学生活动中心

学生活动中心是主楼C内最活跃的空间。

健身中心

健身中心分为上下两层,总使用面积达1,787平方米。

剧院大堂

C楼的大堂侧厅是演艺活动观众的必经之处。

剧院

一座中型规模的高标准剧院,体现了管理学院深切真挚的人文情怀。

图书馆 + 书店

自然光从斗状穹顶透入,象征着智慧之光照耀学子。

大堂

教学场所的庄严肃穆,设计简洁、空间开阔。

冥想室

于极静中倾听自己的心音 , 明晰未来的方向。

教室

主楼 B 含 19 间教室,分布于大楼的二至五层。

大堂

大堂的建筑亮点是云片状连接的天篷为穹顶。

报告厅

报告厅以沉稳的棕色系为主色调,突出学术报告厅庄重严谨的风格。

国际顾问委员会会议室

报告厅以沉稳的棕色系为主色调,突出学术报告厅庄重严谨的风格。

教室

主楼 A 教室区域位于该楼宇的二楼至四楼,共 19 间。

案例讨论室

作为教室的配套设施,案例讨论室的设计充分考虑到商学院案例教学的特点。

图片展示

主楼C
主楼B
主楼A
捐赠联系
姓名
电话

致电联系

地址:

国顺路670号李达三楼905室

联系电话:

86-21-25011375
86-21-25011376
86-21-25011377

E-mail:

dao@fudan.edu.cn